毎日繰り返す家事だからこそ、少しでも負担が減れば暮らしの質はぐっと変わります。エントリエでは、建築士がご家族一人ひとりのライフスタイルを丁寧にヒアリング。だから、暮らす人にとってちょうどいい家事動線が設計できます。
洗濯・料理・片付け・収納……それぞれの暮らしに正解はなく、どの家にも、住む人ならではの工夫があります。今回ご紹介するのは、そんな家事が楽になるリノベーションの実例集。お家をのぞいて、暮らしに取り入れたいアイデアを見つけてみてください!
「見せる×隠す」で散らからない。子どもも片付け上手になるオープン収納


4人家族のAさま邸では、あえて扉のないオープンなキッチン収納を採用。「どこに何があるか」が一目でわかるため、不要なものを溜め込まず、在庫管理もスムーズに。
フルタイムで働くご夫婦の平日は多忙。週末に食材や生活用品の買い置きを置くスペースが必要でした。あえて見せる収納を選んだことで、ものが重複することもなくなりました。
「キッチンとかも相談しましたね。シンク下は扉のないオープンなものを選びましたが、どこに何を置くかをちゃんと決めて、何がどこにあるかすぐにわかるようにするとか」(ご主人)
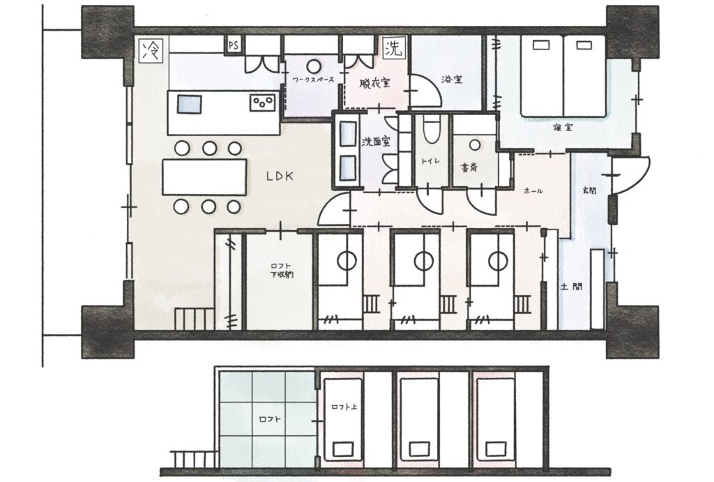
3階建てでも、家事はワンフロアで完結。無駄を削ぎ落とした機能美の住まい



ご両親と同居で鉄骨3階建てにお住まいのGさまご家族。2・3階で暮らす子世帯の生活は、2階だけで家事が完結するように計画しました。
廊下をなくしてLDKを広げると同時に、扉位置の工夫で壁面収納を確保。キッチンとダイニングテーブルは、横並びに配置することで配膳の動線もコンパクトに設計しました。キッチン前面やバックセットに大容量収納を備えたり、リビング内にウォークインクローゼットを設けることで、忙しい毎日でも「出す・使う・戻す」を迷いなく行える仕組みが整いました。
「廊下をなくして居室を広くしてもらったんですが、扉の位置を変えることで壁面収納ができたところですね(気に入っています)。」(奥さま)
日当たりを味方にした家事動線で、暮らしも快適に



1階にお義母さま、2階にUさまご家族が暮らす二世帯住宅リノベーションです。以前は1階と2階を行き来して洗濯物を上げ下げしていたという奥さま。日々の負担を減らすため、2階に洗濯機置き場をつくりました。日を遮る建物がない窓際にインナーバルコニーも新設。「洗う・干す・しまう」の作業が2階だけで完結。キッチンを中心に、家事の工程をスムーズに行える、工夫の詰まった間取りに生まれ変わりました。
「以前は、キッチンが1階で、物干しが外で、あっちこっち行ったり来たりしていた家事動線も、ぎゅっとまとまってよかったです。もう完ぺきです!」(奥さま)
和室をキッチンへ。ふたりで立っても会話が弾む広さに


Kさまご家族は、もともと和室だった空間をキッチンへ。ご夫婦ふたりで並んで料理ができる広々とした空間を実現しました。背面にはパントリーを併設し、買い置き食材や家電を一括管理。
洗面コーナーもリビングの一角に設け、夫婦で身支度できる広々としたスペースを確保。料理・洗濯・片付けの往復歩数を短縮され、夜の家事もぐっとスムーズになりました。
「家事に使う時間がすごく減りました。食洗機をいれたので洗い物の時間がなくなった分、自分たちの趣味の時間に当てることができて。生活に関わるストレスみたいなところは、減った気がします」(ご主人)
回遊動線と片付けの工夫で、5人家族の暮らしも快適に!



ご夫婦と、高校生・中学生の男女のお子さま3人が暮らすHさま邸。
家の真ん中にある洗面・浴室は、使う時間が重なっても快適にアクセスできるよう動線を回遊式に。土間は、子どもたちの汚れた靴や部活用品の一時置きできるようにし、玄関がスッキリすることで片付けのストレスも減りました。また、小上がりの下には取り込んだ洗濯物の一時置き場を設け、それぞれが自室に持っていくシステムに。
心地よく使える共有空間とプライバシーを守る個室で、成長したお子様たちとの暮らしにぴったりの間取りです。
「わたしは土間ですね。部活も頑張っているので子どもたちの汚れた靴や物をいったん置いておけるんですよね。それに、ひとり一足でも10個並ぶでしょ。ごちゃごちゃしているのが嫌だったので広い玄関は快適です。」(奥さま)

