家族とエントリエ - LIFE STORY - #79
築52年ヴィンテージマンション。安心して暮らせるお家 | リノベーション事例 #79

中古マンションを購入して10年ほど経ち、リノベーションを決断したAさまご夫妻。配管の劣化など、築古物件ならではの不安もありましたが、エントリエと一緒に確認しながら計画を進めることができました。大切な猫さん2匹が暮らしやすい動線や、趣味を楽しめる空間など、ご夫妻に寄り添った設計が実現。長年の住まいをさらに快適で愛着のある空間へと生まれ変わらせました。

物件について
| 所在地 | 東京都世田谷 |
| 建物種別 | マンション・RC造 |
| リノベ面積 | 48㎡ |
| 費用 | 1200万(解体費・各種工事費用・デザイン費込み) |
| 時期 | 2024年 |
暮らす家族
ご主人、奥さま、猫ちゃん2匹(ペコ、ポコ)
話し手
ご主人、奥さま
担当スタッフ
二見 奈々絵
リノベーションをしようと思ったきっかけを教えてください。
ご主人:もともと家を買った際に、リノベーションも考えていたんです。でもすでにリフォーム済みだったこともあり、「そのまま住めるかな」という判断で10年ほど過ごしていました。
住んでいるうちに設備の調子が悪くなったり、劣化してきたりして。外側からは見えない配管などの状態も心配で、この機会にしっかりリノベーションしようと思ったんです。
BEFORE

AFTER

どのようにエントリエと出会いましたか?
ご主人:私がネットで5社くらいピックアップしてから、それぞれの会社へ夫婦で話を聞きに行きました。そのうちの1社がエントリエで。伺ったときの印象としては、ヒアリングがすごく丁寧ということ。妻の編み物のことや猫の動線、私たちのことをいろいろと細かく聞いてくれました。後日、プランを見せてもらったときに「これだ!」って思ったんです。プランを見た瞬間に「もうここしかない」と、夫婦で意見が一致しました。
築古物件でご不安があったという点については、いかがでしたか?
ご主人:はじめに家の状態を見に来ていただいたときは、エントリエの二見 奈々絵さん(以下、二見さん)とマネージャーの北島 一宏さんが一緒に来られました。その時点でいろいろアドバイスや説明をいただいたので、安心感がありました。
自分たちだけではこのマンションで何を直すべきか、全然わからなかったんですよね。でも具体的にどこをどうすればいいのか、知識を持って的確に答えていただけたんです。
プランが完成するまでに、どのようなご要望をお伝えされたのですか?
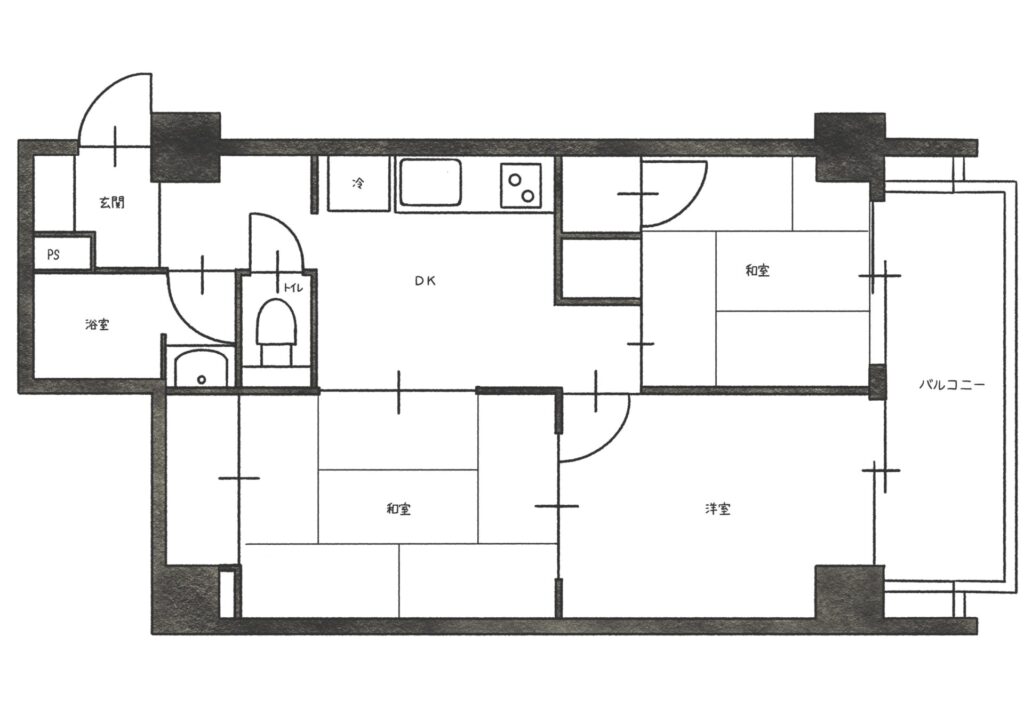
ご主人:まず、玄関横にあった浴室の移動をお願いしました。もともとは在来工法*の浴室だったんですが、ユニットバスに変えたかったんです。ただ、自分たちではどこに移動できるのか判断が出来なくて。キッチンやお風呂をどこに配置するのか、パズルのような作業でしたね。
*在来工法とは……防水処理を施し、壁や床そのものに浴室の機能を持たせる、自由度の高いカスタマイズが可能な設計。

プランが出来上がったときの印象を教えてください。
ご主人:白黒の無機質な図面ではなく、二見さんのプランは好きなテイストの色や、使いたい家具を取り入れた図面を作ってくれたりと具体的なイメージがしやすかったのが印象的でした。それに、猫の様子が隣の部屋からも見えるようにガラス窓があったり、彼らが通り抜けられる猫ドアを考えてくれたり。そこに、猫の足跡を入れてくれるなど、本当に細かい部分まで考えてくれて。



奥さま:二見さんははじめお会いしたときから、話しやすく、明るい印象でした。プランからは、あたたかい感じが伝わってきたんです。
今回の提案の決め手はどこでしたか?
奥さま:始めはベッドをリビングの近くに設置するのは反対だったんです。でも、プランを見たら陽の当たる場所で猫にも良いかもしれないと想像ができて。案外いいかもって思ったんです。結果的にとても気に入っています。
ご主人:LDKと寝室を分けたいという希望があったのですが、他社から提案を受けていて「無理かもな」と思っていました。ふたりでもさんざん議論していて。でも、二見さんの提案をもらったとき、「これなら実現できるんだ」と感心しました。

大きなダイニングテーブルが収まりつつ、空間も広く感じます。
奥さま:そうですね、このダイニングテーブルがしっかりと収まったのも驚きでした。空間を仕切ると置く家具のサイズを小さくなると思っていて。こうやってテーブルを置いても広々とした空間に仕上がったのはすごいと思います。
ご主人:これもプランを見た段階で、リビングやダイニングの開放感が想像できました。狭く見えない工夫として、寝室とリビングの仕切りを扉にし、壁に収まるように二見さんが考えてくれてました。


キッチンの腰壁のデザインにも、こだわられたそうですね。

ご主人:そうなんです、リビングから見た時にキッチン腰壁がポイントになると思ってデザインを相談しました。天板は一般的なカウンター材だと厚みがあって野暮ったく感じてしまって。薄型でスタイリッシュなものを二見さんにおすすめしてもらいました。
ただデザインだけではなく、キッチン側からの使い勝手も考えるとコンセントを付けたくて。そこは、二見さんが職人さんと調整しながら進めてくれました。

照明も落ち着いた雰囲気で。
ご主人:間接照明は、取り入れて良かったです。照明計画ってどうやって進めるのか全くイメージを持っていなくて、どのくらい明かりが必要なのかもイメージが湧きませんでした。そこで二見さんとパナソニックのショールームに連れて行ってもらい、相談しながら進めることにしました。夜は、間接照明だけでも十分に明るいし、雰囲気もあって気に入っています。
猫さんたちの動線も考え、より住みやすくなったのではないでしょうか。
ご主人:以前はリビングと他の部屋が分かれていたので、猫の様子をわざわざ見に行くことも多かったです。扉も簡単に開けられてしまっていたのですが、新しいガラス戸は簡単に開けられないので、外に出る心配もなくなりました。
奥さま:いないと外に出てしまっていないかと気になり、不安なこともあったのでよかったです。


ご主人:あとは玄関を仕切ったことで、前は猫が食べてしまうので飾れなかった花やアートを飾ることができなかったんです。置きたかったものを、飾れるようになったのは嬉しい変化ですね。
お気に入りのポイントを教えてください。
奥さま:キッチンの乾燥機ですね。食洗機だと収納スペースが減ってしまいますが、乾燥機は上に設置できるので、便利で助かっています。洗い物を乾燥機にそのまま置けるので、家事のストレスが減りました。
ご主人:全体的に満足していますが、リビングが特に気に入っています。ここで過ごす時間が一番長いですね。テレビを見たりキッチンに行ったりと行き来がしやすいし、妻は編み物もワークスペースでできる。猫も一緒にいるので、家族全員が自然にどこかでつながっている感じがあって、ワンルームのような一体感が良いですね。

通路と兼用の空間設計が活きていますね。
ご主人:家の面積を考慮して、洗面室やキッチンスペースを通路としても利用し、廊下にも何かしらの機能を持たせる設計にしてもらいました。その結果、スペースを無駄なく活用できていると思います。


ご主人:お客さんが来ることはあまり多くなく、基本的に自分たちだけで過ごしているため、不便さは感じていません。例えば、帰宅した際に妻が料理をしていても、私はウォークインから出入りができます。どちらの動線も使えるようになっているので、とても便利だと感じています。
暮らしてみて、いかがですか?
ご主人:以前感じていたストレスが軽減されたのが、一番良かったと思います。
奥さま:とても快適ですね。お願いしたいことをしっかり入れてもらえたので、お風呂も入りやすくなりましたし、料理もしやすくなって、本当に良くなりました。
廊下にスペースを残したのでお気に入りの収納棚をおきました。趣味の編み物の毛糸が並んでるだけで可愛く、癒されて。それもいいかな。

限られた空間を最大限過ごしやすく
お住まいのご自宅のリノベーションのご依頼でしたが、リノベ前のご自宅も素敵にDIYされていたAさま。インテリアがお好きなのかなとワクワクしました! 48㎡という限られた空間ですが、お二人のご生活スタイルをいろいろとお伺いしながらプランをご提案させていただきました。 寝室はミニマムで。リビングから脱衣に入れるようにすれば洗面は廊下においても良さそう…など、必要なところに必要な空間を設けることで無駄のない生活同線のお家に生まれ変わったと思います。 ご入居後、インテリア家具が入っても窮屈に感じることもなく以前よりも開放的な空間になりました。 ヴィンテージマンションということもあり、過去のリフォーム履歴が詰まった物件でしたが今回の工事でなるべく解体し、劣化部分をリセット。安心してお住まいになれますね。 解体後に設計変更もありましたが、一番の嬉しい誤算は洗濯機が上手く納まったことです! 内装はチェリー材を中心に、全体的にベージュ系で纏まった優しい色合い。 リネンのペンダントライトやファブリック、奥様ご趣味のカラフルな毛糸たちが並んでいて、暖かい印象がとても素敵です! 照明やインテリアも素敵に納まり、Aさまらしいお家になりましたね。 ネコさんたちも居心地が良さそうで何よりです^^ これからも、ゆっくりとくつろげるお家で楽しんでいただけたら嬉しいです! ありがとうございました。

二見 奈々絵 / Futami Nanae
2級建築士、インテリアコーディネーター、福祉住環境コーディネーター
神奈川出身 1989年生まれ
法政大学 デザイン工学部 建築学科卒業…
幼い頃からモノづくりが大好きで自分の生み出したものが長年残る仕事がしたい!と建築を志す。
建築を学ぶ中でより身近な住宅設計に興味を持ち、大学卒業後は大手リノベーション会社に就職。
お客様と直接関わりながら設計・施工を一貫で行う大規模なリノベーションを経験する。
型にハマった提案だけではなく、より自由でワクワクする住まいを設計したいと思っていた矢先、
エントリエと出会う。好きなものを詰め込んだ空間づくりが得意。
リノベーションで住まう人にとっての最高の住空間を提供することに幸せを感じている。
#北欧 #インテリア雑貨 #無印良品 #iittala #marimekko #Artek #STAUB #MOOMIN
#アクセサリー作り #カフェ巡り #旅行 #LIVE #Mr.Children #SAUNA #エスニック料理
LINKS
リノベーションについての
ご相談はこちら
住まいのこと、
お気軽にお話しください!
お話して理想の暮らしについて
一緒に考えてみましょう!

