家族とエントリエ - LIFE STORY - #78
家族の今にちょうどよく。変わる暮らしにフィットするお家| リノベーション事例 #78

お子さまの成長や家族のライフステージの変化に合わせて、二世帯で分けていた生活スペースを考え直すことにしたIさまご家族。家族みんなの過ごし方や趣味など、大切にしている時間がより良いものになるようにと考えて、空間の使い方を一新させたお家が完成しました。

物件について
| 所在地 | 東京都武蔵野市 |
| 建物種別 | 木造2階戸建て 築12年 |
| リノベ面積 | 105㎡(全体120㎡のうち) |
| 費用 | 2,050万(解体費・各種工事費用・デザイン費込み) |
暮らす家族
ご主人、奥さま、娘さま、息子さま
話し手
奥さま
担当スタッフ
鈴木 栄弥
リノベーションのきっかけを教えてください。
奥さま:子ども2人の部屋をしっかり作ってあげよう、というのがきっかけです。
この家で暮らし始めたときは、夫と夫の母、私の3人暮らしでした。二世帯だからキッチンや生活空間はしっかり分けて。子どもはいずれ迎えるかもしれないけれど明確にイメージしていたわけではありませんでした。


奥さま:その後2人子どもが生まれ、小さいときはなんの不便もなく暮らしていましたが、2人とも小学生になって体も大きくなり、窮屈に感じることも増えてきました。女の子と男の子のきょうだいなので、将来を考えても別々の部屋を用意してあげたいなというところから、リノベーションを考え始めました。
エントリエとの出会いを教えてください。
奥さま:できれば決まったメニューで機械的に進めるのではなく、こまやかに寄り添ってもらえて、一緒に話し合いながらリノベーションを進めていけるようなところがいいなと。エントリエはそうして見つけた候補の中のひとつでした。

その中でエントリエを選んだ決め手を聞かせてください。
奥さま:いくつかショールームに足を運んだ中で、聖蹟桜ヶ丘のエントリエモデルルームも見せてもらいました。洗練されておしゃれな空間を見せてくれる会社はほかにもありましたが、その中で子どもが走り回って遊んで、生活するイメージが私の中ではいまひとつ持てなくて。エントリエのモデルルームでは「家族で暮らす」イメージがわくな、と思ったんです。

それからエントリエの鈴木 栄弥さん(以下、鈴木さん)とお話をしてみて、私たち家族の人となりを聞いてくれたのが印象的でした。どんなことに興味があるのか、趣味はあるのか……そういう質問をたくさんしていただいて。
家に帰り、エントリエのサイトで鈴木さんが手がけた事例を改めて見ると、本当にそれぞれの家族に寄り添った提案をされているんだなというのが感じられたんです。これはもう、鈴木さんにお願いしよう、と決めました。

担当者に伝えた要望を教えてください。
奥さま:年月を経て家族のライフステージも変わってきたので、それに合わせたリノベーションをしたいという希望を伝えました。
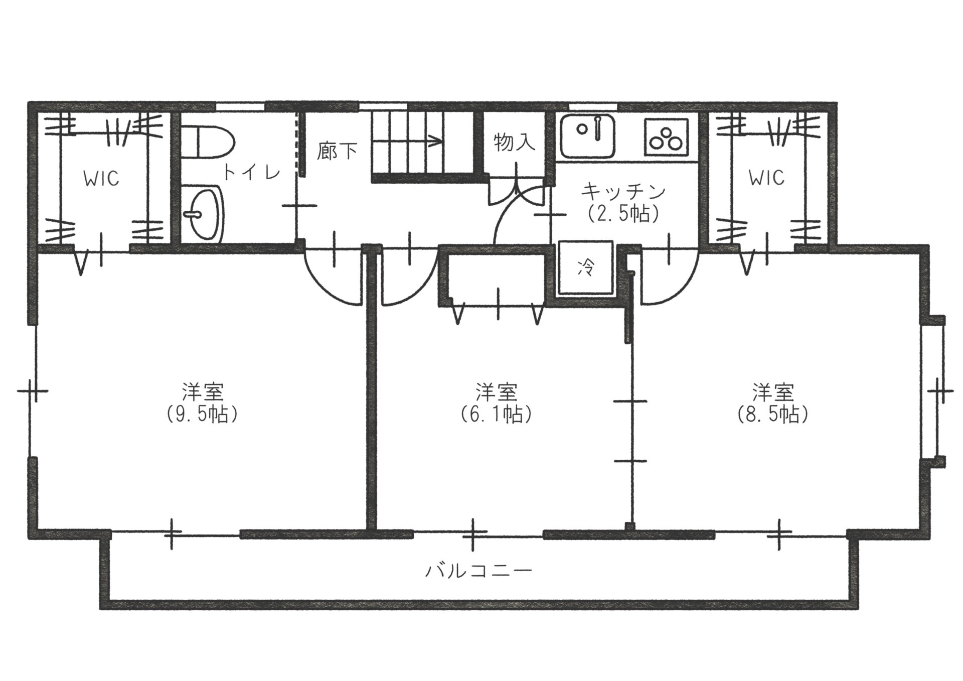
1階 BEFORE

1階 AFTER

2階 BEFORE

2階 AFTER

2階には子どもの部屋をしっかり作る。それから、キッチンは1階だけに。家を建てたときには、母世帯と私たち世帯でキッチンを分けるのは必須で、2階のキッチンはちょっと無理して作った小さなものでした。母も年を重ねて以前のようには料理もしなくなったので、キッチンはひとつにしようと。その代わり、2人で使ってもゆったり使えるように広めにしたいと思っていました。


また、母と私たちの生活時間の違いも考慮して、夜遅くまで起きていても母の眠りを邪魔せずくつろげる場所がほしいという相談をしました。あとは収納ですね。


提案されたプランを見ていかがでしたか?
奥さま:鈴木さんからは4パターン提案をしていただいて、こんなに違うアイデアが出るんだ! と、そこにまず感激しましたね。そのうちのひとつをほぼそのまま進めていただくことになりました。

私たちから出した要望に対しても、期待以上に応えてくださっていて。キッチンは何人か立ってもゆったり使える両面タイプで、とても使いやすいです。それから驚いたのは玄関スペースですね。もともとはごく一般的な広さの玄関だったので、ここまでスペースが取れるんだなあ、と。

玄関からつながった土間収納ができていますね!
奥さま:そうなんですよ。家族でキャンプに行くのが趣味なんですが、以前は大きなキャンプ道具も2階に収納していたので、階段で上げ下ろしするのが大変だったんです。外の物置にもしまっていますが、やっぱり布ものなどは手入れも考えて室内に入れておきたいんですよね。
ほかにも靴の収納をたっぷり作っていただきましたし、傘かけなど細かな要望も叶えていただいて、玄関はとても良いスペースになりました。特に主人が靴好きで、スニーカーや革靴など、長く大事に履いている靴を飾るように収納できています。


2階にはくつろげるセカンドリビングや本棚、それにヌックがありますね。
奥さま:セカンドリビングは、二世帯でもそれぞれ遠慮せずくつろげる場所をと、鈴木さんが提案してくれたんです。実はリノベーション中に母は体調を崩して施設に移ることになってしまったのですが……。
セカンドリビングは、観たいテレビ番組が重なってしまったときに移動したり、ちょっと場所を変えてのんびりしたいときに使っています。ここに併設して、セカンドリビング側からも廊下側からも使える本棚を作ってもらいました。

家族みんな本やマンガが好きで、たくさんあるんです。家の中にある本を全部集めて入れておけば、自分が読みたいものが揃っていて、ほかの家族が買ってきた本も気になったら読めて、楽しいですよね。そういう本棚が家の中に1個ほしいなとずっと思っていたんです。
そしてこのヌック、私の一番のお気に入り場所なんです!こういう小さく仕切られたスペースって、なんだか落ち着きますよね。ここで本を読む時間が大好きで。気がついたら日が傾いて、暗くなってから気づいて電気つけたりしています(笑)。

ヌックは触ってみるとわかるんですが、柔らかくてなめらかな感触なんですよ。「座ってくつろぐところだから廊下のフローリングとは材質を変えました」と、出来上がってから鈴木さんに教えていただいて。そんなことまで気を配っているのかと、これも感激したことのひとつですね。
他にもご家族それぞれお気に入りの場所はありますか?
奥さま:主人は寝室の収納スペースがお気に入りです。服も好きで、コレクションみたいに整然と服が並んでしまわれている様子を眺める時間が良いんだそうです。

娘は念願の自分の部屋ですね。小学6年生で勉強もあるので、自分の部屋で過ごす時間が増えています。息子は今は野球に夢中で。ずっと出かけているので、自分の部屋はまだ寝るだけの場所です(笑)。
リノベーション中、ワクワクした瞬間を教えてください。
奥さま:いよいよリノベーションを始めるとなって、中を取り壊して枠組みだけになったのを見たときですね。うわあ、ここからどうなっていくんだろう、とワクワクしました。
施工の途中でもときどき見学させてもらいました。やっぱり図面だけではイメージしきれない部分もあって、だんだん実際の姿がわかるようになってくる過程も楽しかったです。壁紙が貼られる頃になると、いよいよ完成も近いのかなと。

今回、子ども部屋の半分は白、半分は子どもたちが選んだ色の壁紙にしたんです。私はこれまで、壁紙は同じ色で統一されているものという思い込みがあったんですが、今回、資料を見せていただいたりショールームで見たりして、ツートーンもいいなと新発見でした。自分たちが選んだ色で仕上がった部屋を見て、子どもたちも感動していましたね。


リノベーション後の暮らしはいかがですか。
奥さま:リノベーション前は、私たち世帯は主に2階で生活していましたが、今は1階と2階を100%使う状態になったというのが一番大きな変化なんですよね。子どもたちも個室ができて、在宅勤務の私にもワークスペースができてヌックがあって。個で過ごしやすいスペースも増えています。
そういった自分だけの時間、集中できる時間も大切。だけど一方でくつろぐ時間は家族みんなで過ごしたいなと思うんですよね。たとえば子どもたちにはゲームはリビングでやるようにしてね、と約束ごとを作ったりして、一緒の時間を過ごしています。

家族の今を見つめ、未来の暮らしをより心地よく
建売で購入して築10年でまだ綺麗なお家。しかし家族のライフステージが変化するし、自分たちの好きなテイストにもしたい…どこまで今回リノベーションをするべきか、タイミングは今なのか、そんなご相談からはじまりました。 実は今までで1番悩んだ間取りかもしれません(笑)ご家族それぞれの動線や心地よい居場所を考えながら、既存で残せるエリアや外窓の位置はそのまま、構造的に抜きたくない柱も生かしながら…考え抜いて生み出したこの形です! 外窓もカバー工法で交換したり内窓を設置することで暖かくなり、建物としての性能も向上できました。 リノベ期間中、色々と大変なこともあったかと思いますが、ご家族それぞれお気に入りの場所が出来て、快適に過ごしているお話を聴くことができてとても嬉しいです^ ^これからもご家族みんなが心地よく楽しく過ごせますように!ありがとうございました!!

鈴木 栄弥 / Suzuki Emi
2級建築士、カラーコーディネーター、福祉住環境コーディネーター、ファイナンシャルプランナー
静岡県富士市出身、1990.7.27生まれ。
日本女子大学 家政学部 住居学科 卒業。…
小学生の頃から間取りやミニチュアが好きで、建築模型がつくりたい! と、建築士になることが夢に。
ビルや建物ではなく、人が住む家のことを中心に学びたいと思い、住居学科で学び、
「人が楽しく暮らす住まいをつくりたい」という思いで就職しました。
現在は、エントリエで設計営業 兼 マガジン編集長として所属。気軽に「エイミー」と呼んでください!
わたしの手掛けるお家は、どれも決まったテイストはありません。
住まい手の体温を感じられるテイストに仕上げることが得意です!
●全国ジェルコデザインリフォームコンテスト
2024年 玄関・ホール部門 全国最優秀賞 受賞
2023年 リビングダイニング部門 全国最優秀賞 受賞
2020年 一般社団法人住宅リフォーム推進協議会会⾧賞 受賞
2020年 個室部門 全国優秀賞 受賞
2019年 リビングダイニング部門 全国優秀賞 受賞
●ジェルコ関東甲信越支部リフォームコンテスト
2022年 デザイン部門 キッチン賞 受賞
2021年 デザイン部門 優秀賞 受賞
2020年 デザイン部門 優秀賞 受賞
●RoomClip全国理想の住まいコンテスト
2022年 1000万円以上部門 全国最優秀賞 受賞
2021年 500万円以下部門 特別賞 受賞
2020年 500万円以下部門 全国優秀賞 受賞
LINKS
リノベーションについての
ご相談はこちら
住まいのこと、
お気軽にお話しください!
お話して理想の暮らしについて
一緒に考えてみましょう!

