家族とエントリエ - LIFE STORY - #53
空間を最大限に生かす。リビングの小上がりは家族の居場所 | リノベーション事例 #53

とても仲良しなHさま5人家族。「それぞれのプライベート空間が欲しい」という思いから購入したお家のリノベーションを決めました。希望通りのそれぞれにとっての快適な個室だけでなく、居心地の良いリビングは家族でコミュニケーションをとれるとっておきの場所になりました。

物件について
| 所在地 | 東京都多摩市 |
| 建物種別 | 分譲マンション(築16年) |
| リノベ面積 | 85.5㎡ |
| 費用 | 1,800万円(解体費・各種工事費用・デザイン費用全て含む) |
| 時期 | 2022年 |
暮らす家族
ご主人、奥さま、長男(高校生)、次男(中学生)、長女(中学生)
話し手
ご主人、奥さま、長男、次男、長女
担当スタッフ
澤 雄太
リノベーションのきっかけを教えてください。
奥さま:もともとは住み替えをしたかったんですよね。ただこのエリアで探した時に、新築も中古物件もなかなかいい条件の物件がでなくて。それなら、この家をリノベーションしようかということになりました。

どのようなご要望がありましたか?
ご主人:もともと3LDKでの家族5人暮らし。3人の子ども(高校生・中学生)がいますので、それぞれの部屋を確保してあげたいという要望からはじまりました。
次男:リノベーション前は、リビングにあるテレビでゲームしていたんです。友だちとオンライン上で遊ぶときはボイスチャットを使うことがあったので、妹に「お兄ちゃん、うるさい」と言われて(笑)。ゲームができる環境はほしかったですね。
長男:自分の部屋だけはもともと作ってもらっていたので、あとは信頼している母親に任せていましたね。みんなが納得できる家になればいいなと。
長女:わたしは、和風のテイストにしたいとか、カラオケができるような空間がほしいとか、イメージを膨らませていました。
ご主人:働き方が変わり家にいることが多くなったので、電話やミーティングができる書斎があると嬉しいなと。妻も現在はテレワークが多いので、個室を作ってもらいました。
BEFORE

AFTER

担当者からの提案はいかがでしたか?
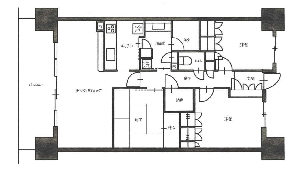
奥さま:最初は3パターンほどスケッチをいただいたと思います。そのなかでも、子ども部屋の広さや仕様が同じものを選びました。「もう恨みっこなしだよ!」と(笑)。長女の部屋は仲のいい従姉妹がいるので泊まりにきたときに女子トークできるような場所として、リビングの小上がりとロフトベッドの入り口を繋いでもらいました。今では、朝もここから出てくるんですよ。



小上がりを含めリビングの空間を広めにとりながらも、それぞれのプライベート空間がしっかり確保されていますね。
奥さま:そうですね。それぞれのプライベートを守れる家がよかったんです。ただ個室を広くとった分、収納スペースが少なくなったので小上がりの下にしっかり収納できるようにしてもらいました。雑誌やウェブ、いろんなメディア、たくさん検索して。

こだわりの場所を教えてください。
ご主人:空気と光の通り道を取り入れた点ですね。マンションの構造上しかたがないのですが角部屋じゃない限り、どうしても部屋の中央に熱がこもるし、暗くなってしまいます。どの部屋にも室内窓をつけてもらうことで、玄関からリビングまで一直線に風が流れるようにしてもらいました。
奥さま:ツーボウルにしてもらった洗面ですね。人数が多いのでどうしても、朝の時間帯は渋滞してしまいますから(笑)。あとは娘が強く希望してくれたのは「一緒に入れる大きなお風呂」です。従姉妹が遊びにきたときや、わたしと一緒に入れるようにと、唯一元の面積を広くしてもらった場所です。毎日、娘と快適に入浴していますよ。

ワクワクした瞬間を教えてください。
長女:壁紙を決めるとき。暗めの青が好きな色なんです。
奥さま:そういえば、壁紙を決めるタイミングではじめて家族みんなでエントリエのモデルルームに行ったんです。子どもたちには「自分の好きにしていいよ」と言っていたのですが、みんなでワイワイ「この色」「あの色」と、どういう組み合わせがいいか見て欲しくて、澤さんの取り合いでしたね(笑)。


担当者とのやりとりで、印象的だったことはありますか?
ご主人:ぼくの記憶の中では、澤さんは「できない」と一度も言わなかったですね。難しいことも、否定からは絶対に入らないんです。あとは、とても細かく丁寧に共有しながら進めてくださったと感じています。工事中は何度もみにきていましたが、「壊してみた結果、天井が少し高くできることがわかったので高くしましょう」と言ってくれて。そういう「言われてみないとわからないこと」は、誠実に進めてくれているのだなと実感しました。
奥さま:そうですね、とても丁寧でしたよ。床下や壁紙の下など隠れている場所って、実際に見てみないとどういう構造なのかわからないですよね。それでも澤さんは「こうなってますよ」とわかるように床材のクッション材を部分的にとっておいてくださって。長男は、建築に興味があるので一緒に見て、「すごいね」って。そういう心遣いもしていただきましたね。
長男:過程を見ることで、本を読むだけだと得られないものを体験できました。

暮らしてみて、いかがですか?
次男:仮住まいが大変だったので、リノベーションされた家にきた時はもう「桃源郷だ!」みたいな(笑)。ひとりでこもりたい気分のときは、いつでもこもりに行けるし、家族の顔を見てリフレッシュしたいときはリビングに来て。空間の使い分けができるようになったのは、1番の変化かもしれないですね。
奥さま:もうひとつ、次男がリビングに来るときはおなかが空いたときね(笑)。
わたしは土間ですね。部活も頑張っているので子どもたちの汚れた靴や物をいったん置いておけるんですよね。それに、ひとり一足でも10個並ぶでしょ。ごちゃごちゃしているのが嫌だったので広い玄関は快適です。

長男:自分は小上がりが好きですね。畳の方で寝転んだり、気が済むまで下の収納で漫画を読んだり。ゆっくり休むスイッチが入るというか。
長女:わたしも小上がりの収納スペースが好きです。こういう、ちょっと狭いところが好きなんです(笑)。部屋にいるのは、勉強するときくらいで他はリビングで家族と過ごしています。

H様と過ごした道のりは僕にとってとても楽しいものでした。
「このクロスを使ったらどうなると思いますか?」そんな会話を頂きながらご家族5人と僕でお打合せをしていたのが懐かしいです。皆さん自分達の空間、いわば自分の城をどんな風にしていくのかワクワクされているようでとても楽しかったです。 家族それぞれの空間を確保しながらみんなで楽しめる空間も大切にする、そんな一見矛盾しているような内容をパズルが組み合わさるようにみんなでカチカチっとはめていって出来たお家のように思います。 みんなで創り上げた家族が幸せになる家、そんなイメージでしょうか。 僕はそのお家に住まわれる方がどの様な時間を過ごされるのかを想像しながらプランをするようにしているのですが、H様の笑顔を拝見してその時間が本当に素敵な時間なんだなと実感できてうれしく思っています。 大変な道のりもあったと思いますが、負けずに頑張って頂きありがとうございました。 H様と過ごした道のりは僕にとってとても楽しいものでした。 また何かありましたらいつでも仰って下さい。会えるのを楽しみにしております。ありがとうございました。

澤 雄太 / Sawa Yuta
2級建築士、福祉住環境コーディネーター、愛犬家住宅コーディネーター
神奈川県出身の1987年生まれ。
東海大学工学部建築学科を卒業。…
幼いころから建築、特に日本家屋が好きで近所の民家園によく遊びに行ってました。
縁側でまったり過ごす時間が大好きでした。
人のことが大好きで、その人の頑張ってることを聞くとつい応援したくなってしまうお人よしです笑。
好きな建築を通して沢山の人の幸せ応援が出来るように頑張っています。
その人の大切な想い出がカタチになるように
その人の幸せな時間がより豊かになるように
その人の人となりが浮かんでくるような
そんなご提案を心掛けています。
是非お気軽に色んなお話を聞かせて下さい!
■ジェルコデザインリフォームコンテスト
2020年関東甲信越大会 優秀賞
2021年関東甲信越大会 家族のつながり賞
2022年関東甲信越大会 優秀賞
2022年全国デザイン部門別優秀賞 個室部門
#バスケットボール #読書 #料理 #お弁当男子 #ランニング #ウサギ #犬 #猫 #食事 #居酒屋巡り #高校野球 #漫画 #アニメ #縁側 #押入れ位の空間 #海 #山 #動物園 #水族館
LINKS
リノベーションについての
ご相談はこちら
住まいのこと、
お気軽にお話しください!
お話して理想の暮らしについて
一緒に考えてみましょう!

