家族とエントリエ - LIFE STORY - #69
家族のライフスタイルから生まれた、アイデア溢れるマンションの2世帯住宅 | リノベーション事例 #69

Sさまご家族はご夫婦と娘さま、そしてお母さまとの2世帯暮らし。物件購入時にリノベーションという選択肢を知ったといいます。限られた時間の中で、生活動線の不便を解消し理想の暮らしを実現したいと、ご夫婦で何度も話し合い細かな要望をリストアップ。家族それぞれが自分の時間を取り戻せるお家ができました。

物件について
| 所在地 | 東京都渋谷区 |
| 建物種別 | マンションRC造 築27年 |
| リノベ面積 | 68.8㎡ |
| 費用 | 1520万(解体費・各種工事費用・デザイン費込み) |
| 時期 | 2023年 |
暮らす家族
ご主人、奥さま、長女、お母さま
話し手
ご主人、奥さま、お母さま
担当スタッフ
澤 雄太
リノベーションのきっかけを教えてください。
奥さま:実はこの家の購入を決めた当初は、そのまま住んでもいいかなと思っていました。もしリフォームをするとしても、古くなったものを新しく取り替えるくらいのイメージで。リノベーションははじめからあった選択肢ではなかったのですが、調べていくうちに「こういうのができたらいいな」とさまざまな要望が出てきたんです。
ご主人:不動産の方から「リフォームされますよね」「スケルトンにされますか?」と言われて。“スケルトン”というワードも初めて聞いたんです。調べてみると建物の柱や梁などの構造部分だけを残して、新たに内装や設備をつくり直すことだと知り、そんな風に家づくりができるのかと驚きました。
エントリエとの出会いを教えてください。
奥さま:物件購入の話が進む中で、リノベーション雑誌を見ていた夫がエントリエの記事を見つけたんです。はじめは、そこに掲載されていた事例を見て緑のタイルキッチンが素敵だなと思ったのがきっかけ。その後問い合わせて、伺った聖蹟桜ヶ丘のモデルルームでは、コンセプトとアイデアのある会社だなと感動しました。モデルルームのroom1は特に間取り的にもわたしたちに合っているように感じて。リビングにあるマグネットボードや玄関の壁タイルなど、知らないことが盛りだくさん。それに、最初に迎えてくれたスタッフの大里 めぐみさんの説明がすごく丁寧でしっかりされていて信頼できるなと思ったんです。
ご主人:あと、ウェルカムムービーを見せてもらって。あれは、感動でした。

今回はエントリエの建築士 澤 雄太を指名してくださったと伺っています。
奥さま:施工事例の記事をいくつか読むなかで、澤さんのデザインが素敵だなって思ったんです。空間を上手に利用して、限られた空間でもプライベートを守ることができることや、ゆっくりできる空間がある方がいいなと、なんとなく考え始めていた頃で。「この方はそういうのがもしかしたらお得意なのかなとか考えました。

どんな要望をお持ちでしたか?
ご主人:動線をスムーズにしたいということです。前に住んでいた賃貸の家は動線上にダイニングテーブルがあって。だから隣の部屋に行きたいときに、誰かがどいてくれないと通れないといったような状態で、それがストレスになっていました。
奥さま:不動産契約を進めながらリノベーションを考えはじめたので、本当に時間がなかったのですが、やりたいことを文字と写真にした6ページほどの資料をつくりました。わたしたち家族と母2世帯になるので、プライベートな空間をつくりたいとか、収納がたくさん必要だとか。
澤さんはそれに加えて、家を購入した理由のひとつである窓から桜が見える風景を、「この借景を大切にしましょう」といってくださいました。

プランを見て、いかがでしたか?
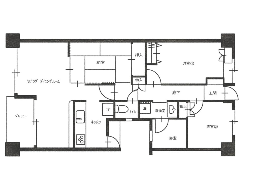
奥さま:全員驚いたのは、キッチンの位置です。元のキッチンからこんなに場所を変えることができるのかと。もうひとつは、ヌック。景色も楽しめるし、収納もたっぷりですべてが叶ったと感じました。それに、夫の希望していた動線。玄関とリビングの間に、廊下とウォークインクローゼット、ふたつの通り道があります。お互いに気を使わずに過ごすことができます。
before

after


こだわりを教えてください。
ご主人:妻が考えて抜いてくれたので、私の出る幕はそこまでなかったのですが……(笑)。ただ、タイルや石材が揃っている平田タイル(東京都新宿区)のモデルルームに足を運んだ際、すごく素敵で。これは、こだわりたいなと思いました。玄関の土間もわたしの要望が叶った場所ですが、タイルをふんだんに使ってもらいました。「朝、ここでコーヒーを飲んで自分を取り戻す時間がほしい」と伝えてつくってもらった場所です。



リノベーション後、暮らしてみていかがでしょうか?
奥さま:自分の家でしっかりとリフレッシュできるようになりました。子どもが寝た後に、自分だけの空間にしたり、照明の下で本を読んだり。すごく心地が良いです。ちょっとこもれる場所って、良いですよね。
ご主人:帰りたくなるお家になりました。みんなも気持ち的に余裕が生まれて、ぶつかることも少なくなった気がします。
お母さま:お台所も遠慮なく使えるようになりましたよ。

お子さんも嬉しそうですね。
奥さま:子どもが嬉しそうで、私たちも嬉しいです。今はヌックが子どもの場所になっていて、歌ったり踊ったりと、アイドルが好きなので、ステージみたいに使っています。それに、ロフトの上は秘密基地と呼んでいます。
ご主人:以前、娘はリビングで寝ていたので生活の切れ目がなかったのですが、今は寝室があるので、ちゃんと寝る時間を意識してくれています。ヌックでおもちゃの「メルちゃん」を寝かしつけて、朝起きたらその子を起こすなんていうこともしていて、嬉しいですね。

ワクワクしたことを教えてください。
奥さま:限られた時間の中でショールームや打ち合わせに何度も通ったり、大変なことも多くて。考えていたよりもタスクが多い! なんて思いましたが(笑)。でも自分の家のことを考えて、それを打ち合わせで澤さんに伝え、全部肯定してもらう。それが楽しかったです。


リノベーションは、いかがでしたか?
奥さま:この家に住んでからわかったのは、自分の好きなものがたくさん集まった場所にいると単純に嬉しいということ。澤さんは「何を大事にしたいですか」と最初のヒアリングをとっても丁寧にしてくださったのですが、リノベーションはそういう「自分の暮らしを見つめる時間」が大切だったんだなって。住みはじめてから実感しています。
ご主人:リノベーションというきっかけがなければ、自分のしたいライフスタイルについて考えることもないです。壁紙ひとつとっても何色にするとか、贅沢な悩みですよね。妻と壁紙をたくさん見て、どちらがいいか? というふたりの話し合いが意外と心地よいと感じました。
そうやってたくさん時間を使って考え抜いたから、こんなに落ち着く家になったのかなって思うんです。リノベーションって、そこに対してお金をかけるということだったんじゃないかなと。経験者はみんな、こんなに楽しいことしてたんだ! と思いました(笑)。
奥さま:夫はしょっちゅう「こんなに楽しいことをみんなしているのに、なんで教えてくれなかったの?」といっていました(笑)。
お母さま:大変なこともあったけど、ふたりとも、よく頑張りましたよね。

すごく楽しんでリノベーションをして頂きありがとうございました。
僕もとても楽しかったです。僕の事例を見て一緒にリノベーションをしたいと言って頂いた事がとてもうれしくより気合が入っておりました。皆が楽しく過ごす空間と一人一人の空間、今回はそれに加えて『動線』という3つのポイントからたくさんの検討をしましたね。初めてお会いした時にお困り事のお話と同時に「こんなことがやりたいんです!」というたくさんの夢のお話を聞かせて頂きました。「川を流したい」というお話もとても楽しかったです。でもそれってこういう事が好きだからかな?こんな空間を実現したいのかな?そんなことを考えながらご提案をさせて頂きました。それらご要望を紐解くカギになりましたのが『自分の暮らしを見つめる時間』なんじゃないかなと思います。僕もたくさん検討をしましたが、それ以上にS様はご検討を頂いたと思います。頑張っていただきありがとうございました。楽しい時間を共有できてとてもうれしかったです。これからもたくさん暮らしを見つめ楽しい時間をここで過ごして頂けたら嬉しいです。ありがとうございました。

澤 雄太 / Sawa Yuta
2級建築士、福祉住環境コーディネーター、愛犬家住宅コーディネーター
神奈川県出身の1987年生まれ。
東海大学工学部建築学科を卒業。…
幼いころから建築、特に日本家屋が好きで近所の民家園によく遊びに行ってました。
縁側でまったり過ごす時間が大好きでした。
人のことが大好きで、その人の頑張ってることを聞くとつい応援したくなってしまうお人よしです笑。
好きな建築を通して沢山の人の幸せ応援が出来るように頑張っています。
その人の大切な想い出がカタチになるように
その人の幸せな時間がより豊かになるように
その人の人となりが浮かんでくるような
そんなご提案を心掛けています。
是非お気軽に色んなお話を聞かせて下さい!
■ジェルコデザインリフォームコンテスト
2020年関東甲信越大会 優秀賞
2021年関東甲信越大会 家族のつながり賞
2022年関東甲信越大会 優秀賞
2022年全国デザイン部門別優秀賞 個室部門
#バスケットボール #読書 #料理 #お弁当男子 #ランニング #ウサギ #犬 #猫 #食事 #居酒屋巡り #高校野球 #漫画 #アニメ #縁側 #押入れ位の空間 #海 #山 #動物園 #水族館
LINKS
リノベーションについての
ご相談はこちら
住まいのこと、
お気軽にお話しください!
お話して理想の暮らしについて
一緒に考えてみましょう!


