家族とエントリエ - LIFE STORY - #72
思い出を生かす、猫たちと暮らす二世帯住宅。 | リノベーション事例 #72


思い出がたくさん詰まったお家を二世帯住宅にするためにリノベーションを決めたSさまご家族。以前の家の雰囲気も大切に残しながら、新しい生活に受け継いでいく。そして4匹の猫さんたちが、居心地よく暮らすために。お互いの気持ちを大切にした、思い出があちらこちらに生きる二世帯住宅ができました。

物件について
| 所在地 | 東京都立川市 |
| 建物種別 | RC造 3階建 築36年 |
| リノベ面積 | 126㎡(全体面積165㎡) |
| 費用 | 1770万(解体費・各種工事費用・デザイン費込み) |
| 時期 | 2023年 |
暮らす家族
1階:お母さま、猫2匹、2階:ご主人、奥さま、長男、猫2匹
話し手
ご主人、奥さま
担当スタッフ
田畑 照子
リノベーションのきっかけを教えてください。
奥さま:子どもが小学校に入学する頃までには、二世帯住宅にして同居を考えていたんです。ただ昨年、思っていたよりも早く母がひとり暮らしになってしまい。そのためリノベーションの話を進めたという経緯があります。建て替えという選択肢がなかったのは、更地にすると倍以上のお金がかかると言われて。
お母さま:条件的に建て替える方が大変だったみたいですね。それに、この家を建てたときに大工さんから「このお家は100年持ちますよ、どんな地震があっても大丈夫です」というお墨付きをもらったんです(笑)。とっても頑丈に作っていただいて。
会社探しはどのように進めましたか?
奥さま:実は他社に決めかけていたんです。だけどもう少し見ておきたいかなと思って依頼をした中でいちばん早く連絡をくれたのがエントリエでした。WEBマガジンでは二世帯事例が豊富だったというところもあって。
ご主人:友人も「いっぱい話を聞いた方がいいよ」とアドバイスをしてくれたんです。たしかに提案された間取りだけではなく、他のパターンも知りたいなと思いました。
エントリエの決め手を教えてください。
奥さま:担当の田畑 照子(たばた・てるこ)さんからは、他社にはなかった意欲のようなものを感じて。ヒアリングをしっかりとしたうえで、1回目の打ち合わせから3パターンも間取りの提案をしてくれました。あとはイメージ図もつくってくれたので、わたしたちにとってもわかりやすくて。でもいちばんは、田畑さんが「後悔はさせません」って言い切ってくださったこと。それが最終的な決め手だったかもしれません。
ご主人:親身になってくれて、この人ならいろいろ相談できそうだなと感じました。
お母さま:田畑さんの人柄につきますよね。
before



after



どのようなご要望がありましたか?
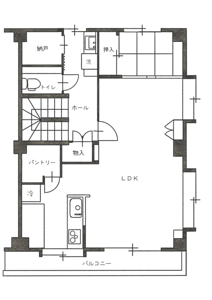
奥さま:そもそもこのお家、10年くらい前にリフォームしているんですよね。だから活かせるところは活かして欲しいとお伝えしていました。その上でわたしとしては、自分の部屋を作りたい、子育てしやすい間取りにして欲しいとご提案のお願いをして。あとは母の住む場所とわたしたちの住む場所が分断されず、開放感のあるようにということですね。
ご主人:仕事があるので、自分の部屋は必須条件でした。他には、今までのお風呂は足が伸ばせなかったので、大きいものがいいということ、トイレもウォシュレットが強いのがいいなど機能的な部分をお願いしました。
お母さま:わたしが1階に住むことになったので、生活をコンパクトにするために必要な動線と設備を考えていただきました。

担当からの提案を見たときの印象を教えてください。
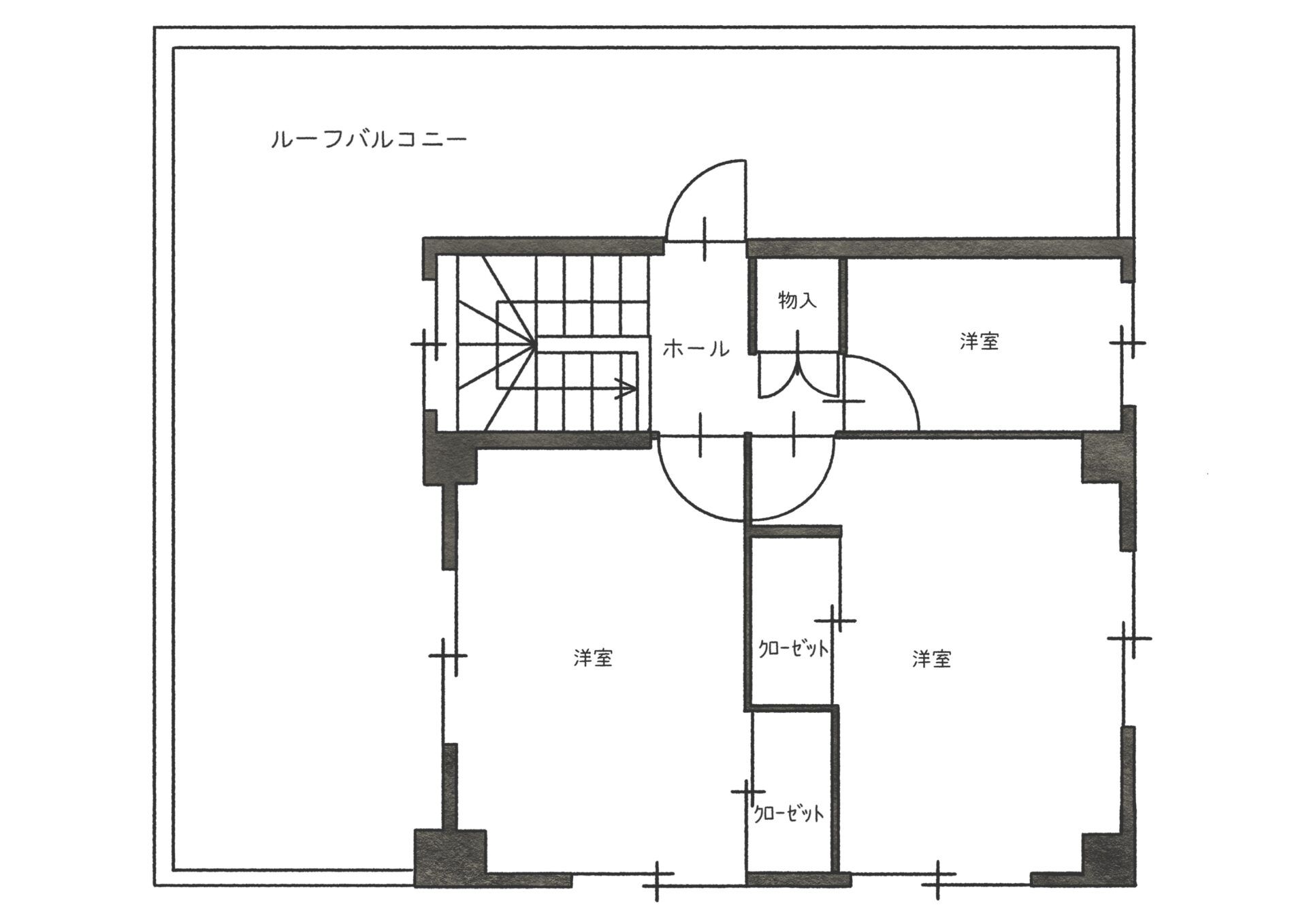
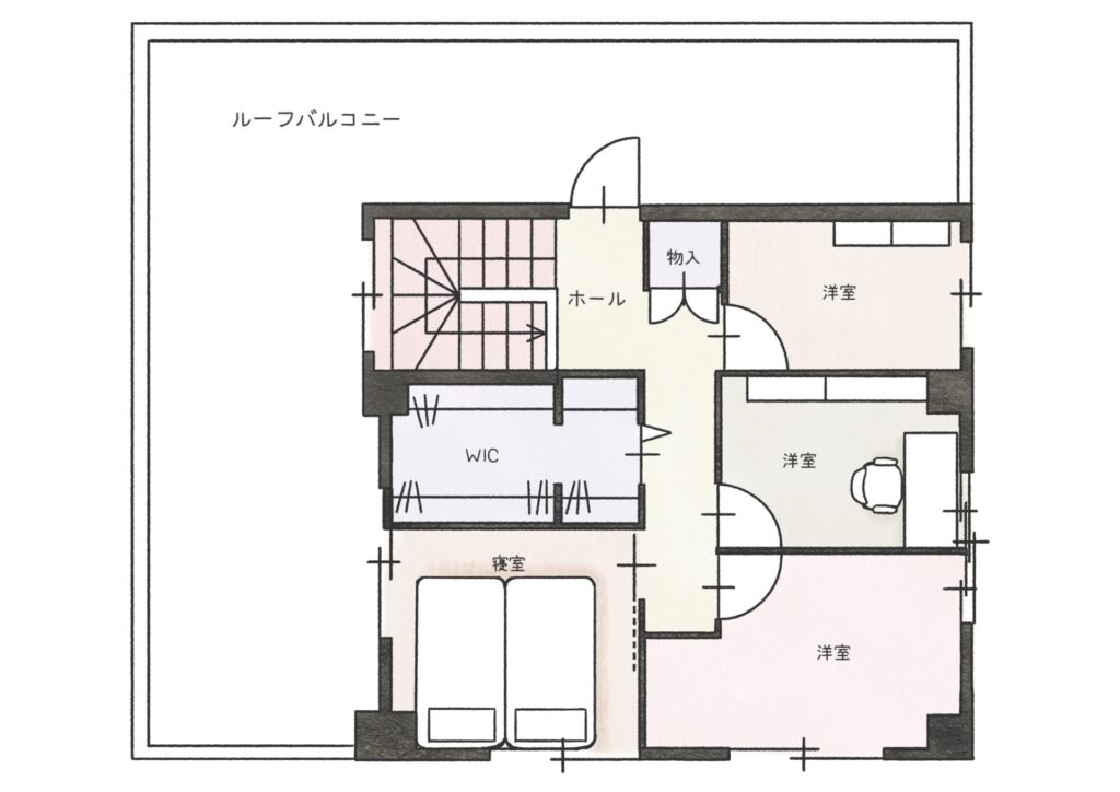
奥さま:3階部分は、他社とはかなり違う感じで出てきたので驚きでした。あえて収納を減らし、踊り場を広くして猫たちの居場所を作ってもらったんです。開放的でいて、なおかつ要望通り、それぞれの部屋が確保されていました。
ご主人:田畑さんは僕たちが思いつかないような発想力で、提案をしてくれたなと思うんです。ベースになる間取りがあるうえで、さらにプラスするような要望を伝えることができたんですよね。自分たちが1から作るとなると、できなかったなって。
お母さま:こんな変え方があるんだなと感じました。テレビをかけている壁があるので、部屋に扉がないとか、面白いですよね。


部屋数も多い分、仕様決めも大変だったのではないでしょうか?
奥さま:そうですね。ひたすらInstagramを見て好きなものを探したり、(インテリア内装材メーカーの)サンゲツやリリカラなどのショールームもハシゴしたり。田畑さんには最終的にしぼった仕様を見てもらいながら相談をして、アドバイスをいただいてました。
お母さま:以前は薄いグレーの壁に統一していたんですが、新しく壁紙を貼り替える場所に関しては残している壁と違和感がないものを田畑さんに選んでもらいました。


2階リビングは、以前のお家から残したものがたくさんあるそうですね。
お母さま:前のリフォームで、こだわって無垢材を使ってもらっていたんです。梁やキッチンのカップボード、キャットウォークもそうですね。壁付けテレビの下に設置した棚の木材は、キッチンに使っていたものを再利用してもらいました。
奥さま:ありがたく、使わせてもらっています。すべてではなくても、短くしたり、場所や用途を変えたり。そういった調整を田畑さんはすごく丁寧に対応してくださいました。

残したものといえば、各所に設置されているアンティークの家具も素敵ですね。
お母さま:そう、できるだけ残して使って欲しい家具がいくつかありました。たとえば、娘の部屋にある机は、主人の父であるおじいちゃんから受け継いだものです。
奥さま:机をベースに本棚の場所はどこがいいか? という相談にものってくれました。


猫ちゃんと暮らすアイデアも、満載ですよね。
お母さま:主人がいつも保護してきて、以前は6匹もいたんですよ。以前のリフォームで作ったキャットウォークは、若い子しか上がらなかったけれど(笑)。小上がりのところまで続いていたんですが、今回、大工さんが頑張って途中で切ってくださって。
ご主人:田畑さんは、猫に関することはこちらが要望しなくても考えてくれました。3階の踊り場もそうですし、人間と猫の生活動線をしっかり考えてくれているなと感じました。現地調査では、田畑さんが猫に吸い寄せられていく姿が記憶に残ってますね(笑)。





お気に入りの場所を教えてください。
奥さま:自分の部屋です。誰からも見られず、閉じこもれるのが最高です。ピクチャーレールをつけてもらって、好きな絵を飾れるのも嬉しくて飾っています。
お母さま:窓際にベンチを置いてひたすらテレビを見ています。iPadも手元で見ながら(笑)。夢中になっています。
ご主人:大きなテレビをおきたかったので、みんなが寝静まったあとはYouTubeやNetflixを見ていて。距離も程よく、疲れずに見れるんですよね。僕は以前の住まいから、「変わった!」感を出したかったので、ここの2階の階段からテレビ周辺の間取りは、嬉しいです。
はじまったばかりの二世帯住宅での生活。暮らしてみていかがですか?
ご主人:二世帯住宅に関しては、(ネットなどで)さまざまな意見を知ることもできますが、やっぱり自分たちのことは住んでみないとわからない部分もありますよね。正直なところ、奥さんの実家でまだまだ住み慣れていないところもあるし。でも、自分のこだわりたいところはやらせてもらって快適に過ごせています。それぞれの空間がしっかり確保されているから、程よい距離感を保てています。


リノベーションは楽しめましたか?
奥さま:何をどこに置くか、そこでどう生活していくかを考えていたことが、実現したのは楽しかったです。テレビの裏の収納は、Instagramで見てやりたいと思い相談したところです。 壁紙選びも苦しかったけど、楽しかったですね。出来上がりをみたら、わたしの見る目は正しかったなって。
お母さま:わたしは、あんまり楽しくなかったの(笑)。なにしろ娘が生まれた時から住んでいる家だからものが多くて、それを片付けるのが本当に大変で。それに、猫のこと、仮住まい探し、引越しのこと。結局、体調もあって、住みながらの工事に。気を使うし、ご面倒だったかと思います。それでも田畑さんにはひとつひとつ寄り添ってもらえて、わたしも猫たちもとっても助かりました。
奥さま:たくさん相談にのってもらいましたね。あと、途中でお芋をたくさんくれたのも印象的でした(笑)。

ご家族皆様と猫ちゃん達の2世帯暮らしのお手伝いが出来て本当に嬉しかったです!
ご相談を頂いた時、私の得意な2世帯工事かつ、両世帯共に猫ちゃんと生活をされているご家族と聞いてワクワクしたのをよく覚えています。 猫好きな私のご家族と猫ちゃんの為に頑張るぞ!とご提案したことが「他社にはなかった意欲のようなもの…」として伝わり、ご縁をいただけて本当にうれしかったです。 二世帯化では、それぞれの住まい方・生活サイクル・領域分担・お金の事等、解決しなければいけないことが沢山ありましたよね。ご家族で話し合い、真剣に向き合っていただきありがとうござました。 お母様とは、ご主人様とリフォ-ムしたお気に入りのお家を活かせるようご相談を進めてさせてもらいました。沢山の荷物の片づけは本当に大変だったと思います、お疲れ様でした。工事中は、現場の職人さんにも沢山ご配慮いただいてありがとうござました。 子世帯様とは、当時住まれていたお住まいにも伺いして沢山話を聞かせていただきましたね。個人のスペ-スも大切にしていることも強く感じましたので、新しいお家でそれぞれのお気に入りの居場所で楽しんでいただけている様子が本当にうれしい限りです。写真撮影でお伺いした時には、少し大きくなった息子さんも私のことを覚えていてくれて、一緒におもちゃで遊んでくれて…楽しかったね! それぞれのこだわりや叶えたいことや思いを沢山お話しくださったからこそ、大成功のリノベーションになったのだと、感謝の気持ちでいっぱいです。本当にありがとうござました。この先もご家族みなさんで楽しく住んで頂けたら、とても嬉しいです。これからも末長くお付き合いの程、よろしくお願いします。

田畑 照子 / Tabata Teruko
2級建築士、増改築相談員、猫との住まいアドバイザー
…
お客さまの笑顔が何より嬉しく、仕事を続けてきました。
ゆっくり、沢山お話しをしながら、家作りを一緒に楽しみましょう!
受賞歴:
ジェルコデザインコンテスト第14回 全国大会 優秀賞 2004年
第24回 関東甲信越大会 優秀賞 2014年
LINKS
リノベーションについての
ご相談はこちら
住まいのこと、
お気軽にお話しください!
お話して理想の暮らしについて
一緒に考えてみましょう!

